
塑料颗粒种类介绍
塑料颗粒指颗粒状的塑料,一般分为200多种,细分达几千种。常见的塑料颗粒有通用塑料,工程塑料,特种塑料。通用塑料:聚丙烯、聚乙烯、聚氯乙烯、 聚苯乙烯、聚酯、聚氨酯等。工程塑料:尼龙、聚四氟、聚甲醛、聚碳有机硅等。特种塑料:热固性塑料、功能高分子塑料,比如人工肾。

塑料颗粒直线筛的工作原理:
塑料颗粒振动筛为双振动电机驱动。当两台振动电机做同步、反向旋转时,其偏心块所产生的激振力在平行于电机轴线的方向相互抵消,在垂直于电机轴的方向叠为一合力,因此塑料颗粒振动筛的运动轨迹为一直线。两电机轴相对筛面在垂直方向有一倾角,在激振力和物料自重力的合力作用下,物料在筛面上被抛起跳跃或向前作直线运动,从而达到对物料进行筛选和分级的目的。适用于粒度在0.074—5mm,含水量小于7%,无粘性的各种干式粉状或颗粒状物料的筛分。
塑料颗粒直线筛结构说明:
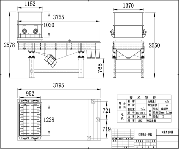
本筛机主要由筛箱、筛框、筛网、振动电机、电机台座、减振弹簧、支架等组成。

1、筛箱:由数种厚度不同的钢板焊制而成,具有一定的强度和刚度,是筛机的主要组成部分。
2、筛框:由松木或变形量较小的木材制成,主要用来保持筛网平整,达到正常筛分。
3、筛网:有低碳钢、黄铜、青铜、不锈钢丝等数种筛网。
直线振动筛从筛箱,筛框,支架,筛网,筛框,振动电机,电机座等结构介绍
4、振动电机(使用与维修方法详见振动电机使用说明书)。
5、电机台座:安装振动电机,使用前连接螺钉必须拧紧,特别是新筛机试用前三天、必须反复紧固,以免松动造成事故。
6、减振弹簧:阻止振动传给地面,同时支持筛箱的全部重量,安装时,弹簧必须垂直与地面。
7、支架:由四个支柱和两个槽钢组成,支持着筛箱,安装时支柱必须垂直与地面,两支柱下面的槽钢应相互平行。
塑料颗粒打散筛分一体机外形:
塑料颗粒直线筛安装调试与使用:
该设备应固定在专用地基上,由预埋螺栓固定。如不打专用地基,应在工作台与设备机座之间敷设防振橡胶板,在使用前必须给设备配置安全可靠的接地保护线.。
注意:设备安装到位后,开机前必须将运输时用来固定筛体和机座的装置拆掉。
新筛机安装好以后,应按以下要求检查:
1、检查振动电机绕组对地的绝缘电阻,若<20MΩ必须烘干后方能使用。
2、筛体和机座上、下弹簧座圈上,弹簧应完全垂直嵌入弹簧座圈,以保证筛体平衡,筛机的振动部分切勿与机外其它物体有硬性连接或接触。
3、闭合电源开关,确认振动电机同步反向旋转,进行10-20分钟空运转,设备在运行时如有异常声音,应迅速关机进行检查处理。设备运转正常后,可将少量需筛分的物料通过进料口设入筛机内,确认物料向出料口方向行进,然后逐渐增加到所需和所能承受的给料量。
振动筛厂家家友情提示:请通过正规渠道购买振动筛配件,以保障您的合法权益!振动筛厂家请选河南奥创机械:http://www.bjbah.com/zxky/818.html 24小时服务热线:18937310551
物料直线运行方形筛专家-奥创机械 网站备案:豫ICP备16037295号-13