产品介绍
      螺旋筛分机是一种新型筛分设备,适合于各煤矿选煤厂对煤炭的筛分作业,应用效果良好,能提高生产效率,增加经济效益。
	 
	 
螺旋筛分机工作原理
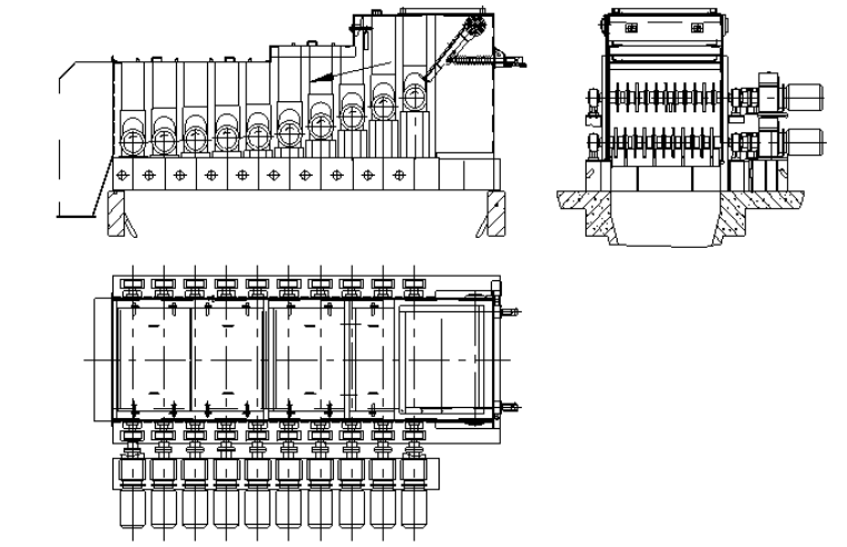
	螺旋筛分机由两段或三段结构相同的筛分机串联而成,每段筛分机机组之间呈阶梯状布置,并且可以互换,中间由过渡板相连,每段筛分机组由机架、传动箱、电动机、一排带左旋螺纹和右旋螺纹的螺旋滚轴组成。螺旋滚轴安装在前支座和后支座之间,两支座固定在框架上。螺旋滚轴的后端与刚性联轴器和传动箱联接,筛分机框架上装有电动机,通过三角皮带驱动传动装置,使螺旋滚轴获得动力旋转以进行筛分作业。所有螺旋滚轴的尾端均装有齿轮,前一根滚轴由齿轮经滚动轴承和中间齿轮传动至下一根螺旋滚轴。传动箱内设有螺旋轴同步运转 。另外,为了防止筛子过载,设置了机电安全保护装置,有效保证的 。若采用三级以上不同规格的机组进行组合,可获得规格不同的多种筛分产品,达到简化筛选工艺的目的。
	 
	 
	螺旋筛分机结构特点:
	 
1、筛轴、筛片等易损件容易更换;筛片采用梅花状筛片,并且交错布置,不仅有利于煤料的输送,而且能减小相邻筛轴形成的死角,避免卡塞,适用于烟煤、无烟煤、褐煤、煤矸石等物料。
2、每个筛轴均由电机减速机单独驱动,即每一组筛轴均设有一套驱动装置;减速机与滚轴筛联轴器采用弹性柱销联轴器连接;任一组筛轴发生故障燃煤可在前一筛轴推动下越过故障筛轴继续前进,设备可以照样运行。各筛轴同向等速旋转,且有过载能力。各转动部件转动灵活,没有卡阻现象。
3、筛轴多角度合理布置,在设备入口段筛轴和水平夹角为15°,在出口段筛轴和水平夹角为5°,使煤料进入设备先经初步粗筛后再进行二次细筛,可有效的提高筛分效率并防止堵煤。
4、设备箱体两侧设有耐磨衬板,避免物料和箱体的直接接触,大大提高设备的使用寿命;并且耐磨衬板和箱体使用螺栓连接,更换方便。
5、在机内入口处设有用电动(液)推杆切换的挡板, 可在滚轴筛检修时使煤料直接进入下层皮带而不影响系统的运行;煤挡板置于入料口的下方,设备在工作状态时挡板处于状态Ⅰ的位置;当煤的粒度≤30mm不须筛分或设备出现故障而输煤线不能停机时,可启动电动(液)推杆将煤挡板转到状态Ⅱ的位置,这时煤流可直接落入下游运输皮带中。挡板用耐磨钢板制作而成,有均匀布料功能,使煤料均匀平铺在整个筛面上,起到更好的筛分效果。
6、筛片表面全部加工,提高其表面光洁度以防止粘煤,且筛轴下设有经过热处理的“刃”形清扫板,能清除筛片侧面和根部的粘煤,有效的防止堵煤现象的发生。
7、筛轴两端采用耐磨衬板包圆盘结构,彻底解决了箱体两侧和筛片卡大块的问题,保证了设备的正常运行。
8、筛轴的出轴端盖采用橡胶密封垫和O型毛毡圈双重密封,确保箱体严密不漏煤粉;轴承座采用剖分式,轴承用钙基润滑脂润滑,而不用稀油润滑,便于维护及检修,轴承密封迷宫式密封,确保没有油脂渗漏现象;轴承温升一般不大于40℃,且轴承温度不超过70℃。
9、整机设备采用厚度δ≥10mm的钢板制作而成,以确保箱体及底座有足够的刚度;焊接表面光滑平整,没有气孔、夹渣、焊瘤、裂纹等缺陷存在,主要焊缝还进行探伤检查。
10、滚轴筛的每根筛轴上均设有机械和电气双重保护,当设备过载时,联轴器的尼龙安全销将被剪断,对减速机起到机械保护,另外,当筛轴堵转时,电机电流变大,  联系电话  17651956627刘(同微信)超过临界值将发出报警信号,从而起到电气保护。
11、滚轴筛采用顺序启动,即出口处第一根筛轴先启动,然后依次向上顺序启动,使设备可在筛面上有煤时带负荷启动。
	12、筛轴和筛片有足够的机械强度和刚度,并满足带负荷起动运转
	螺旋筛分机的技术特点
螺旋筛分机的主要优点为:入料水分不限,无筛孔堵塞和筛面粘料现象;设备结构坚固、耐磨损,分级工艺简单,物料推进速度快,设备运转平稳,无动负荷,对基础冲击力小,噪声小;在筛分条件相差不大的情况下,处理能力比振动筛大2~4倍。其主要缺点是:结构复杂,电动机功率大,机体笨重,螺旋滚轴上的 螺旋筋条磨损较快。
	螺旋筛分机型号参数表:
	 
螺旋输送机厂家家友情提示:请通过正规渠道购买螺旋输送机配件,以保障您的合法权益!螺旋输送机厂家请选河南奥创机械:http://www.bjbah.com/zxts/957.html   24小时服务热线:18937310551