
两层圆振动筛是目前在砂石筛分行业受客户欢迎的振动筛类型,不仅因为其筛分效率高,处理量大,而且它可以应用在砂石筛分的不同环节,例如预先筛分、检查筛分以及分级筛分等。圆振动筛以筛网面积呈圆形轨迹向前运行而得名,物料在筛面上不断被松散和抛起,筛网运动相对剧烈,使得细颗粒物料有更多机会透过筛孔并完成筛分,也可使得卡在筛孔中的物料跳跃出来,防止筛孔堵塞,筛分效果非常好。
	 
	 
	两层圆振动筛工作原理
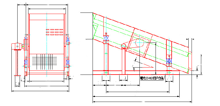
两层圆振动筛主要有筛箱、筛网、振动器、减振弹簧装置、底架等组成。筛机侧板采用优质钢板制作而成,侧板与横梁、激振器底座采用高强度螺栓或环槽铆钉连接,采用筒体式偏心轴激振器及偏块调节振幅。振动器安装在筛箱侧板上,并由电动机通过三角皮带带动使激振器偏心块产生高速旋转,产生很大的离心惯性力,激发筛箱产生一定振幅的圆运动,筛上物料在倾斜的筛面上受到筛箱传给的冲量而产生连续的抛掷运动,物料与筛面相遇的过程中使小于筛孔的颗粒透筛,从而实现分级。
	 
两层圆振动筛结构:
	 
	1、采用块偏心作为激振力,激振力强。 
2、 筛子横梁与筛箱采用高强度螺栓,结构简单,维修方便快捷; 
3、 采用轮胎联轴器,柔性连接,运转平稳; 
4、采用小振幅,高频率,大倾角结构,使该机筛分效率高、处理大、寿命长、电耗低、噪音小。
	
圆振动筛型号定义:
	 
	
两层圆振动筛主要特点:  
1、环槽铆钉联接、结构先进,坚固耐用。
2、采用联轴器连接,柔性连接,运转平稳。
3、筛子横梁与筛箱采用高强度螺栓,结构简单,维修方便快捷。
4、结构先进、采用块偏心作为激振力,激振力强、电耗低、噪音小。
5、采用小振幅,高频率,大倾角结构,使该机筛分效率高、处理*大。
6、振动器采用大游隙轴承,稀油润滑、噪声低、寿命长。另部件通用性强,维修方便。
7、多种筛分辅助配置,更多地理解客户个性化的筛分需求,满足不同行业的需求,达到*佳筛分目的。
两层圆振动筛型号参数表:
	
振动筛厂家家友情提示:请通过正规渠道购买振动筛配件,以保障您的合法权益!振动筛厂家请选河南奥创机械:http://www.bjbah.com/zxts/889.html24小时服务热线:18937310551
物料直线运行方形筛专家-奥创机械 网站备案:豫ICP备16037295号-13